windows?
Moderators: B.Scott, vippymini, Gazza, Manky Sanke
windows?
Hi there guys and gals. I am in the middlwe of planning my new pool and was wondering where the best place to get windows and frames is. I am looking for two one around 3"x2" and the other perhaps 4"x2"? And my toher question is do they equate to brick courses? Thanks Andy 
Forget wasting money on a frame you do not need one. All you require is 2 lintels, a steel L shaped for the facing bricks and a concrete lintel for the internal course of brick work. [img]http://www.jewelspondsandgardens.co.uk/Imag ... ts/180.JPG[/img]
If you need any help/talk through how to do it mail me and I will save you money.
Jules
If you need any help/talk through how to do it mail me and I will save you money.
Jules
- tomy2ponds
- Great White Shark

- Posts: 1033
- Joined: Tue Aug 16, 2005 6:24 pm
- Location: Surrey/London borders
As Jules said you don't need a frame as advised we built the wall with a recess put a stainless plate in to support the to course of bricks above and glassed it all then the window was fitted from inside and sealed into place 
The Photo is with out the glass in place
LEE
The Photo is with out the glass in place
LEE
- Attachments
-
- pond rebuild 062.jpg (43.72 KiB) Viewed 25643 times
- tomy2ponds
- Great White Shark

- Posts: 1033
- Joined: Tue Aug 16, 2005 6:24 pm
- Location: Surrey/London borders
Hi Andy what we did was to put sealant Gold label or similar around the recess pushed the glass in to place then sealed it pond side to the fiberglass then out side to the bricks and edge of the fiberglass .it is a very neat job on the outside
and also if the worst should happen and the glass got broken at a later date you only have to drop the water below the glass and you could remove it not an easy job but it can be done without destroying the pond wall
LEE
LEE
- Bob Hart
- Site Admin

- Posts: 2292
- Joined: Sun Aug 14, 2005 8:53 am
- Location: Maidstone, Kent, England
- Contact:
Andy,
Once Jules showed me how to make a window frame without a frame, I've fitted a few.
Just build the opening from the inside with blcoks, then fit a slightly larger piece of 20mm ply over the hole. 25-30mm all round bigger is usually fine.
Then render the pond walls up to the ply. Once the render is dry, remove the ply and you have a frame.
Fibreglass into the frame, then fit glass with Den Braven sealent. Den Braven has another name which I cant recall sitting here, someone will remember.
I also saw one pond 'frame' built when the pond was lined with that sheet insulation. Again once it was glassed there was a nice frame to fit the glass to.
Once Jules showed me how to make a window frame without a frame, I've fitted a few.
Just build the opening from the inside with blcoks, then fit a slightly larger piece of 20mm ply over the hole. 25-30mm all round bigger is usually fine.
Then render the pond walls up to the ply. Once the render is dry, remove the ply and you have a frame.
Fibreglass into the frame, then fit glass with Den Braven sealent. Den Braven has another name which I cant recall sitting here, someone will remember.
I also saw one pond 'frame' built when the pond was lined with that sheet insulation. Again once it was glassed there was a nice frame to fit the glass to.
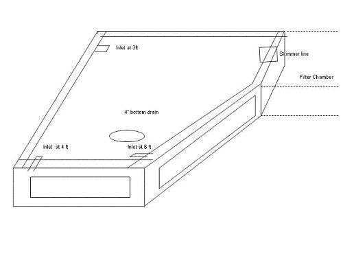
thanks all, at the moment I am thinking some think like picture...and yes 3D pictures aree not my forte! I am loking at a corner pond with round inside corners , 3 mid water returns, one bottom drain, skimmer, and perhaps two windows? Filteration whys I am probably going to run b/d through nexus then bubble into then uv and heating system , as nexus will take out some solids and is easy to clean, then bubble for fines Skiimer perhaps through basic soilds removal stage then up into trickle tower to gas ofF and reoxygenate?
- Attachments
-
- pond ideas.jpg (17.43 KiB) Viewed 25595 times

